Khóa thanh thoát hiểm GMT 917A là một giải pháp an toàn đỉnh cao, một thiết bị khóa cửa thoát hiểm chuyên dụng được chế tác dành riêng cho các hệ thống cửa hai cánh tại những công trình đòi hỏi tiêu chuẩn an toàn và chất lượng ở mức độ cao nhất. Sản phẩm thanh đẩy panic bar GMT 917A, với sự bảo chứng từ tiêu chuẩn quốc tế UL danh giá và chất liệu Inox 304 thượng hạng, là sự lựa chọn không thể thay thế. Thiết bị này không chỉ đảm bảo khả năng sơ tán đám đông một cách nhanh chóng và có trật tự mà còn là một phụ kiện kiến trúc sang trọng, góp phần khẳng định đẳng cấp và sự chu toàn của công trình.

Thông số kỹ thuật của thanh thoát hiểm GMT 917A
| Thuộc tính | Chi tiết |
|---|---|
| Mã sản phẩm | GMT-917A |
| Cơ cấu chốt | Có bộ chốt đứng (1M+1M) |
| Chiều dài thanh ngang | 1 Mét |
| Ứng dụng | Dùng cho cửa đôi |
| Chất liệu | INOX 304 |
| Tiêu chuẩn | UL |
| Xuất xứ | Trung Quốc |

Đặc điểm của khóa thanh thoát hiểm GMT 917A
- Đạt tiêu chuẩn an toàn UL (Underwriters Laboratories): Đây là sự bảo chứng danh giá và là minh chứng rõ ràng nhất cho chất lượng vượt trội của sản phẩm. UL là một trong những tổ chức chứng nhận an toàn độc lập uy tín và khắt khe nhất thế giới có trụ sở tại Hoa Kỳ. Một sản phẩm được liệt kê UL (UL Listed) có nghĩa là nó đã vượt qua hàng loạt các bài kiểm tra nghiêm ngặt về độ bền cơ học, khả năng chịu lửa, và hiệu suất vận hành trong các điều kiện mô phỏng khẩn cấp. Việc sở hữu chứng nhận UL đảm bảo rằng thanh thoát hiểm GMT 917A sẽ hoạt động một cách hoàn hảo và đáng tin cậy trong những thời khắc quan trọng nhất.
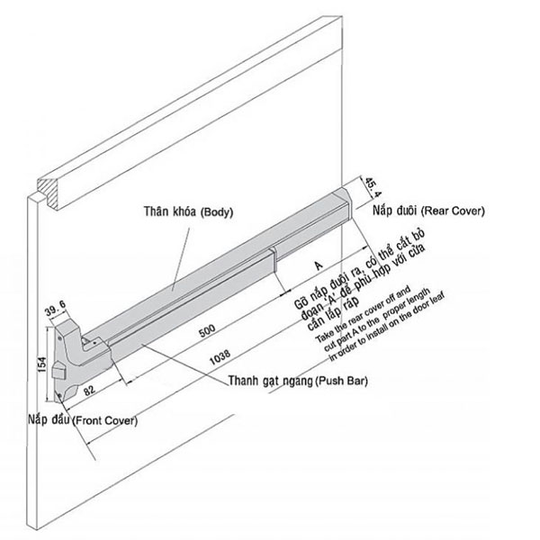
- Thiết kế chuyên dụng với bộ chốt đứng: Đây là đặc điểm cốt lõi làm nên giá trị của GMT 917A. Sản phẩm được trang bị một bộ chốt đứng (thanh chốt dọc) với tổng chiều dài 2 mét (1M+1M), đi kèm với thanh ngang dài 1 mét. Cơ chế này cho phép khi có lực đẩy tác động vào thanh ngang, cả chốt ngang và hai chốt dọc ở trên và dưới sẽ đồng thời rút lại, giải phóng hoàn toàn cả hai cánh cửa. Điều này tạo ra một lối đi rộng tối đa, vô cùng quan trọng cho việc sơ tán đám đông một cách an toàn và nhanh chóng, giảm thiểu nguy cơ ùn tắc và hoảng loạn.
- Vật liệu Inox 304 cao cấp: Toàn bộ sản phẩm được chế tác từ vật liệu Inox 304, một loại thép không gỉ thượng hạng. Inox 304 nổi tiếng với khả năng chống ăn mòn và chống oxy hóa phi thường, không bị ảnh hưởng bởi độ ẩm, các yếu tố thời tiết hay các chất tẩy rửa thông thường. Điều này không chỉ mang lại tuổi thọ gần như vĩnh cửu cho sản phẩm mà còn giúp nó luôn giữ được vẻ ngoài sáng bóng, sang trọng.
- Kỹ thuật cơ khí chính xác: Kế thừa từ các tiêu chuẩn sản xuất cao cấp, cơ cấu cơ khí bên trong thanh đẩy panic GMT 917A được chế tạo với độ chính xác cao. Điều này đảm bảo mọi thao tác đẩy mở đều diễn ra một cách mượt mà, nhẹ nhàng và không gây tiếng ồn.
Ưu điểm của thanh thoát hiểm GMT 917A
- An toàn được chứng nhận quốc tế: Với chứng nhận UL, bạn có thể hoàn toàn tin tưởng vào khả năng bảo vệ và độ tin cậy của sản phẩm. Đây là yếu tố then chốt giúp công trình của bạn không chỉ tuân thủ quy định PCCC trong nước mà còn đáp ứng các tiêu chuẩn an toàn quốc tế, đặc biệt quan trọng với các dự án có vốn đầu tư nước ngoài.
- Tối ưu hóa khả năng sơ tán đám đông: Cơ chế mở đồng thời cả hai cánh cửa của GMT 917A là giải pháp tối ưu cho các sảnh lớn, hội trường, và lối ra chính. Nó đảm bảo một lối thoát rộng rãi, giúp quá trình sơ tán diễn ra nhanh chóng, trật tự và hiệu quả hơn rất nhiều so với các giải pháp khác.
- Độ bền vượt thời gian, chi phí bảo trì tối thiểu: Nhờ vật liệu Inox 304 cao cấp, sản phẩm có khả năng chống chọi với mọi điều kiện môi trường khắc nghiệt. Bạn sẽ không cần lo lắng về việc gỉ sét hay xuống cấp theo thời gian. Điều này giúp giảm thiểu chi phí bảo trì, sửa chữa, mang lại hiệu quả kinh tế vượt trội trong dài hạn.
- Nâng tầm giá trị và đẳng cấp công trình: Việc sử dụng các phụ kiện cao cấp, được chứng nhận quốc tế như GMT 917A thể hiện tầm nhìn và sự chuyên nghiệp của chủ đầu tư. Vẻ ngoài sang trọng, sáng bóng của sản phẩm cũng góp phần tạo nên một không gian kiến trúc đẳng cấp, hiện đại và tinh tế.
Ứng dụng của thanh thoát hiểm GMT 917A
Với chất lượng và tiêu chuẩn vượt trội, Khóa thanh thoát hiểm GMT 917A là lựa chọn hàng đầu cho các lối thoát nạn hai cánh tại các công trình cao cấp và quan trọng:
- Các tòa nhà văn phòng, trụ sở tập đoàn.
- Khách sạn 5 sao, khu nghỉ dưỡng sang trọng.
- Cửa thoát hiểm của trung tâm thương mại cao cấp, showroom lớn.
- Cửa ra vào hội trường, phòng hội nghị quốc tế, nhà hát.
- Các khu vực yêu cầu sơ tán nhanh số lượng lớn người như sân bay, nhà ga.
Khóa thanh thoát hiểm GMT 917A không chỉ là một thiết bị an toàn, mà là một tuyên ngôn về chất lượng, sự bền vững và đẳng cấp. Đây là sự lựa chọn thông thái cho các kiến trúc sư và chủ đầu tư, những người luôn đặt sự an toàn của con người và giá trị của công trình lên hàng đầu.
Để khám phá thêm các dòng sản phẩm Thanh thoát hiểm GMT khác hoặc nhận tư vấn chuyên sâu cho dự án của bạn, hãy liên hệ ngay với Thanhthoathiem.com. Chúng tôi cam kết mang đến những sản phẩm chính hãng, chất lượng đỉnh cao cùng dịch vụ hỗ trợ chuyên nghiệp và tận tâm nhất.


Đánh giá
Chưa có đánh giá nào.